The next phases of the St Ann’s New Neighbourhood masterplan in Haringey, North London, will deliver 464 new homes and will continue the transformation of the former St Ann’s Hospital site into a thriving mixed-use residential neighbourhood, enhancing and extending the area’s ecology and heritage and securing a long-term legacy for Peabody.
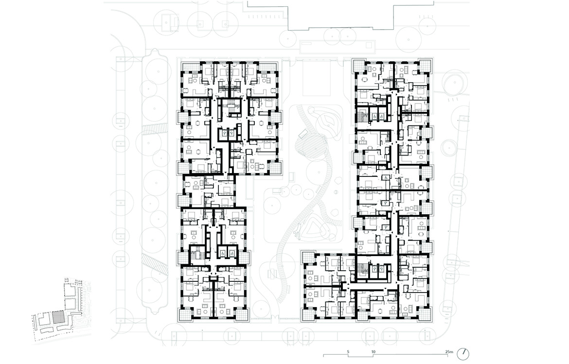
A substantial 73% of the new homes in Phase 1B & 2 will be affordable, including 58 homes for a local Community Led Housing group. Completing the southern half of the overall masterplan, the nine new apartment buildings and fourteen family houses will sit alongside restored Victorian-era hospital buildings including the Water Tower and Admin Building. All buildings are united through a complementary brickwork palette and architectural language, inspired by the distinctive character of the Victorian hospital and surrounding area, ensuring a fully tenure-neutral approach and continuing the ambition of the first phase as set out in the approved Outline Masterplan and Design Code.
The new buildings of Phases 1B & 2 range in height from three to nine storeys, changing in type, scale and form across the site, in response to the varied site conditions. A row of affordable family houses along the western boundary address the terraced streets beyond, continuing the neighbourhood street established in the first phase and framing the landmark Water Tower. Taller courtyard mansion buildings towards the centre of the plan front on to the central Peace Garden, with generous shared landscape gardens. To the south of the site, villa buildings adopt a looser arrangement, optimising views through the beautiful natural setting of the adjacent protected (SINC) woodland and maximising dual aspect homes.
In the site’s southwestern corner, a public square and commercial unit greet a new pedestrian and cycle through-route to Warwick Gardens and the high street amenities and transport links of Green Lanes beyond. This new route will provide permeability through this previously isolated hospital site for the wider community, ensuring that the new development is an integrated part of the city as well as improving neighbourhood-wide active travel connections.
Our masterplan has been shaped by the site’s existing biodiversity and wealth of protected, mature trees, which was originally laid out by a Royal Botanic Gardens, Kew horticulturalist in 1920. Existing landscape and ecological assets are carefully enhanced, informing character, providing amenity value and ecological benefits, while retaining connections with the site’s heritage.
The most significant landscape feature of Phases 1B & 2 is the Sites of Importance for Nature Conservation (SINC) woodland to the site’s southern boundary. The existing SINC area is extended by 45%, creating a continuous woodland corridor along the railway line, complemented by bioswales supporting wildlife-rich habitats and climate resilience. The existing woodland is enhanced through native, species-rich planting, and a pedestrian pathway is introduced supporting greater access to nature for the wider community.
Running north-south through the centre of the site, a new ‘Green Link’ extends the character of the woodland through to the Peace Garden with a generous linear swale. Bridges cross the swale playfully to meet residential entrances and complement play paths which interweave the rich SuDS landscape, creating homes that are healthy, embedded in nature and distinctive.














